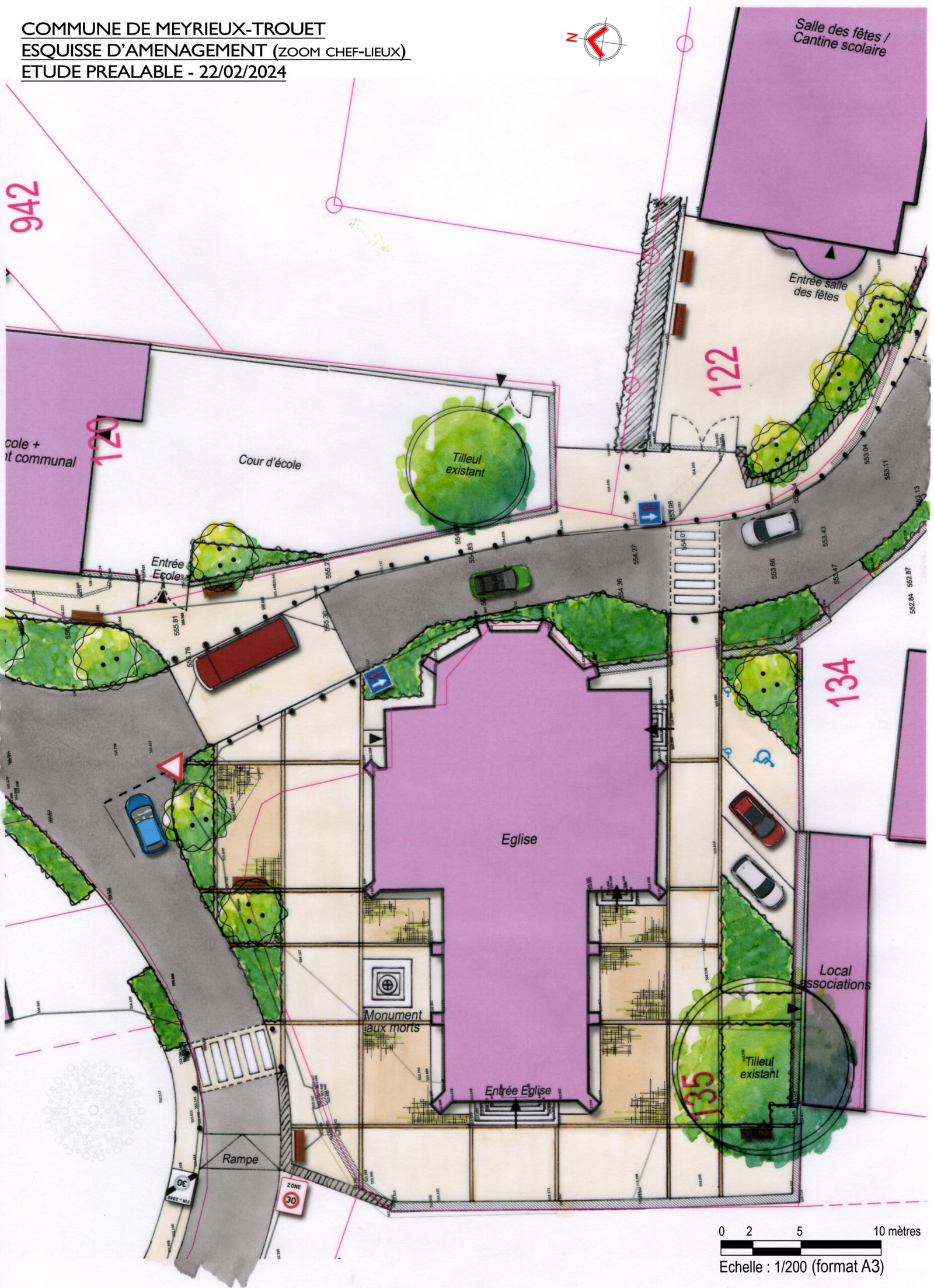
Requalification du cœur de village de la Commune de MEYRIEUX-TROUET.
Maitrise d’Ouvrage : Commune de MEYRIEUX-TROUET (73)
Maitrise d’œuvre : Agence 2B PAYSAGE CONCEPT (Maîtrise d’œuvre complète)
Entreprises : FONTAINE TP / GONTHIER Espaces Verts
Etudes : 2024/2025
Réalisation des travaux : 2025/2026 (Tranche 01)
Objectif des aménagements :
La commune a souhaité mener une réflexion complète sur le réaménagement de son cœur de village
afin :
- D’améliorer la qualité des espaces publics,
- De favoriser et sécuriser les déplacements piétons (création de trottoirs, de passage piétons sécurisés, sortie d’école,),
- De réorganiser le stationnement et la circulation des véhicules (ralentissement et rétrécissement de voirie, création d’un parking paysager),
- De mettre en valeur son patrimoine local (déplacement du monument aux morts, réaménagement du parvis de l’église),
- De végétaliser les espaces publics (création d’ilots de fraicheur, d’espaces verts attrayants).
Avec ce projet de requalification, la commune de Meyrieux-Trouet affirme sa volonté de retrouver un cœur de village où chacun peut circuler sereinement, se rencontrer et profiter pleinement des espaces publics, une étape importante pour renforcer la qualité de vie, mettre en valeur le patrimoine local et sécuriser les déplacements piétons au sein même du chef-lieu.

