Aménagement d’un jardin privé
Localisation du projet : CUZIEU (01)
Concepteur et Maitre d’Oeuvre : Agence 2B PAYSAGE CONCEPT
Etudes : 2023
Réalisation des travaux : 2024
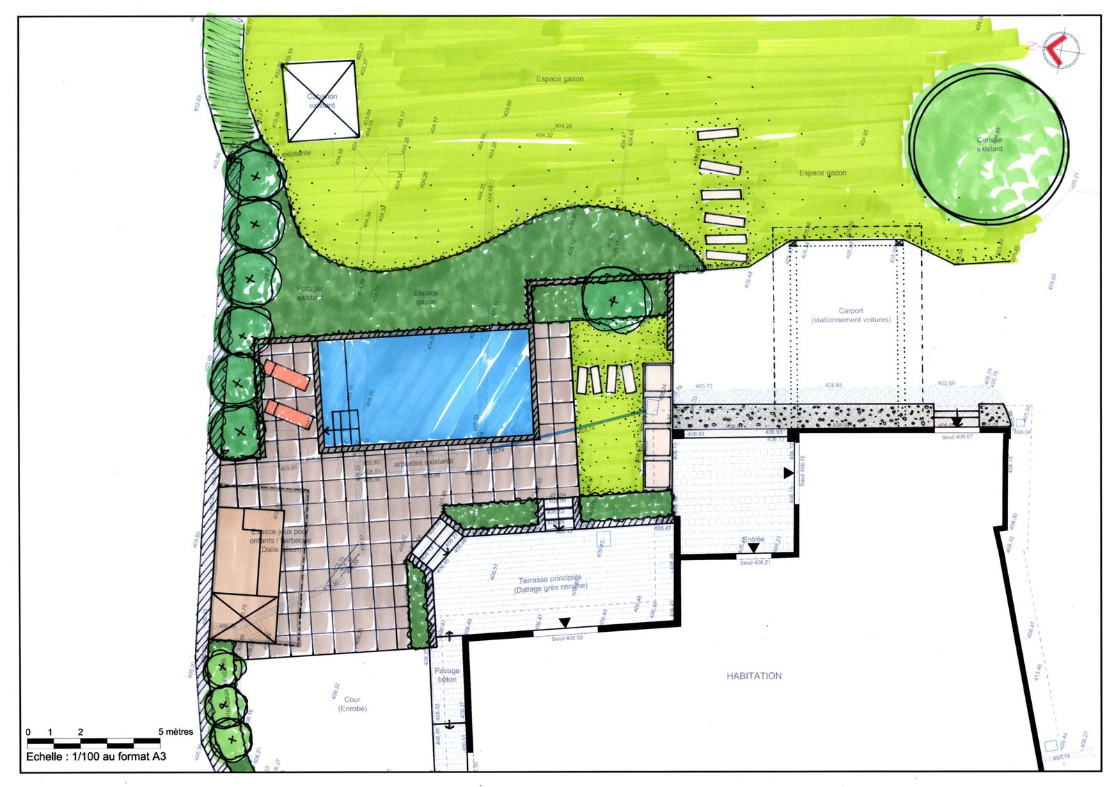
Objectif des aménagements :
Mise en valeur des espaces extérieurs avec création d’une piscine maçonnée faisant partie intégrante du jardin. Terrasses à demi-niveau pour gérer la pente existante du terrain. Conservation et mise en valeur des vues sur le paysage lointain (chaine des Alpes et Mont Blanc), création de différents
espaces de vie agrémentés d’un écrin de verdure pensé avec sobriété qui révèle de magnifiques couleurs automnales. Les matériaux contemporains (dallage grès cérame, pas japonais) viennent composer les différents espaces soigneusement agencés au sein du jardin.

